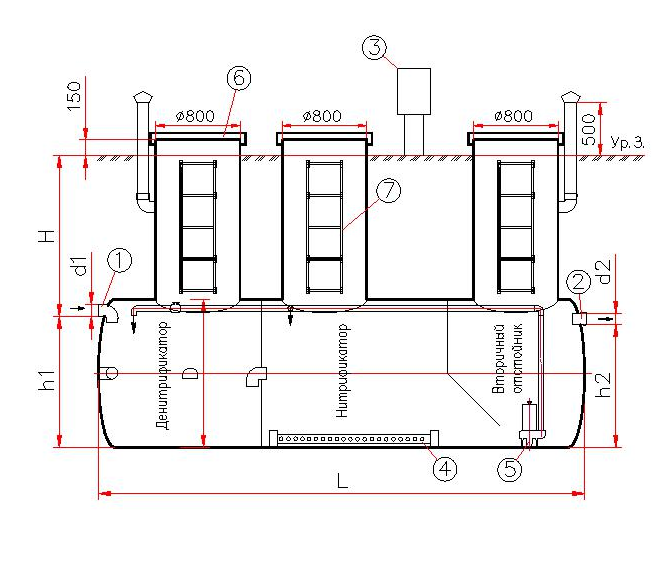
Установки биологической очистки сточных вод / СБО-СП
Производитель: ЭКОСЕПТИКБЕЛ
Соответствует требованиям: ТУ BY 691329573.006-2018 ЭСБ, ЕАЭС N RU Д-ВY.АЖ22.В.04225/18
Сертификат: Декларация соответствия №ЕАЭС N RU Д-ВY.АЖ22.В.04225/18, Сертификат собственного производства №103.9/657-1 от 17.12.2018
Год начала выпуска: 2015
Диаметр внутренний, мм: 1 500.00, 1 600.00, 2 000.00, 2 400.00
Толщина стенки t, мм: 10.00
Диапазон рабочих температур эксплуатации, °С: от -40° до +50°С
Дополнительно: Импортозамещающая продукция
Рубрики: Оборудование водоподготовки и водоотведения
Инженерное оборудование очистных сооружений
Изделия из полиэфирных, базальтовых и стеклянных нитей
Изделия из ПВХ, пластмассы и геосинтетических материалов
Инженерное оборудование очистных сооружений
Изделия из полиэфирных, базальтовых и стеклянных нитей
Изделия из ПВХ, пластмассы и геосинтетических материалов
Обновлено: 04.01.2019

Отзывы